PS-GR-170-15 dom jednorodzinny nowoczesny - projekt energooszczędny

Projekt domu jednorodzinnego z ukrytym spadzistym dachem.

Autor: Grzegorz Olesch Plug Studio

Wizualizacje: 
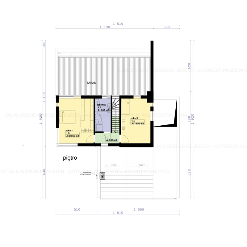
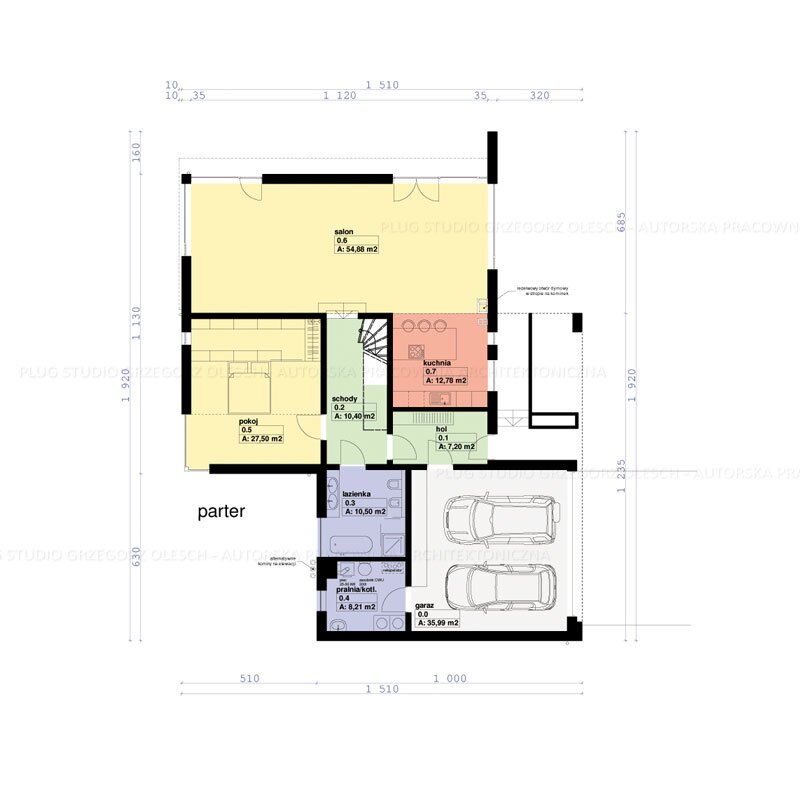
Rzuty: